BfB Wiesbaden
































    Aktuelles

    Profil

   Personen

    Projekte

   Download

    Kontakt
   
   Impressum  
     

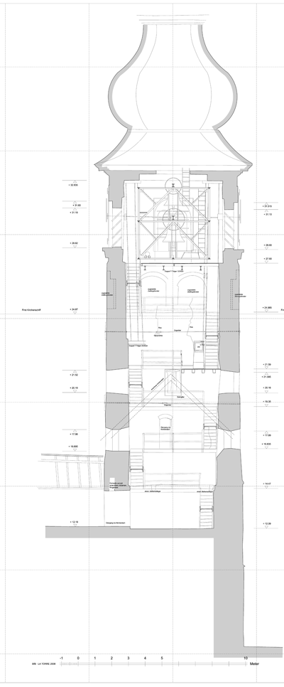
Kirchturm von St. Jakobus in Rüdesheim am Rhein
    zurück  

   Schnitt    Ansicht

Der Kirchenbau selbst geht auf eine Stiftung des 12. Jhs. zurück. Ältester Teil ist jedoch das romanische Kapellengeschoss des Kirchturmes aus dem 10. Jh., die Geschosse darüber stammen aus der Zeit des Baus der späteren Saalkirche im 14. Jh. und dem Barock bzw. aus dem Wiederaufbau der fast völlig zerstörten Kirche nach dem Zweiten Weltkrieg.

Zur Planung von Maßnahmen zur statischen Ertüchtigung der oberen Turmgeschosse wurde eine Bauaufnahme aller fünf Grundrisse, Schnittansichten und auch Außenansichten, ohne den Bau einrüsten zu müssen, angefertigt.  




                    zurück zu Projekte                                         

                    zurück zum Seitenanfang

St. Jakobus Rüdesheim