|
Aktuelles
Profil
Personen
Projekte
Download
Kontakt
Impressum
|
Altes Rathaus in Frankfurt - Höchst

Das sog. Alte Höchster Rathaus ist der einzige steinerne
Renaissance-
rathausbau in Frankfurt a. M. Unweit des Höchster
Schlosses und der Justinuskirche steht es im Zentrum der
Altstadt von Höchst. Da es sich hier um den ältesten nachweisbaren Rathausbau
der Stadt Höchst handelt, wird es als Altes Rathaus bezeichnet.
Der repräsentative Bau wurde 1594/ 95 von den Brüdern Oswald
und Jakob Stupanus errichtet. Er wurde anstelle des ehemaligen
Gemeindehauses gebaut, das bei dem großen Brand in Höchst
1586 zerstört wurde.
Es war bis 1844 Sitz der städtischen Verwaltung. Danach wurde das
Gebäude an den Zimmermann Josef Sauer verkauft, der es als
Gasthaus nutzte.
Inzwischen wird das Alte Rathaus zu Wohnzwecken im Obergeschoss sowie im Erdgeschoss für Vereine genutzt.

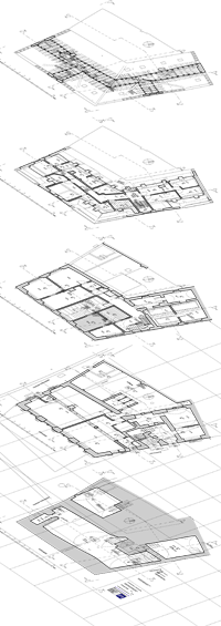
Durch die bauhistorische Untersuchung, die angefertigte
dendro-
chronologische Bestimmung einzelner Konstruktionshölzer, die
zeichnerische Gesamtaufnahme und die restauratorische Untersuchung (A. Frenzel) war
es möglich, zahlreiche Details der Bau- und Nutzungsgeschiche
des Alten Rathauses zu klären. Ergebnisse waren u. a. ein
Bauphasenplan und ein rekonstruierter Grundriss des bauzeitlichen
Zustandes. Auch das aus heute verlorenen Archivalien bekannte Baudatum
(1594/95) konnte durch die Dendro-
chronologie bestätigt werden.
zurück zu Projekte
zurück zum Seitenanfang
|